06.03.2017 - SARONNO // FAMILY HOUSE EXTENSION

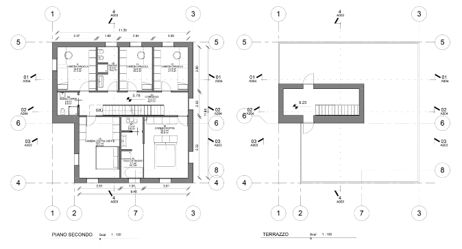
L’incarico per una villa unifamiliare a Saronno inizia dallo stato di fatto che viene mantenuto negli involucri esterni, il progetto prevede però l’ampliamento della casa alzandola di un piano e ridistribuendo i collegamenti verticali e le partizioni interne. La nuova villa si sviluppa quindi su quattro piani: il pian terreno con i box auto, cantina, lavanderia e un soggiorno fronte giardino; il piano primo che integra l’ingresso con zona living, cucina e una sala studio; il piano secondo che ospita la zona notte composta da due camere padronali tre camere singole e tre bagni; il piano terzo è un’ampia terrazza.

Tutto il progetto è stato sviluppato in BIM, dalla fase di modellazione 3D e rendering alla presentazione degli elaborati grafici (piante, sezioni e prospetti)




tipo : incarico completo , progettazione integrata
dimensione : 400 mq + esterni e terrazze
importo lavori : 1.200.000 €
stato : in corso
cliente : privato






























